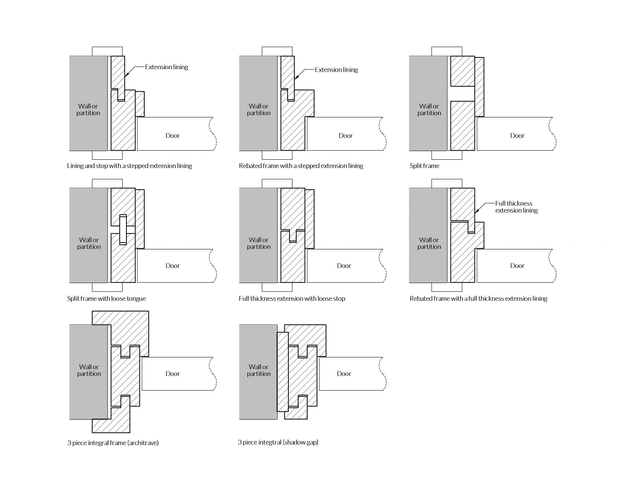
Extension Liner – Overview
Cadwell Green offer a wide range of extension lining option to suit your needs. Here is a selection that might be applicable, alternatively, if your preferred construction style isn’t shown, then please get in touch and we can develop alternatives.

